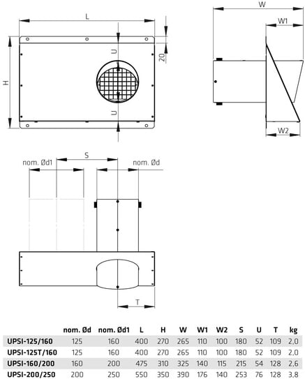
Ulospuhallussuutin Climecon UPSI R 200/250
LVI-numero 8825045
Raitisilman sisäänottoon ja ulospuhallusilman seinäpuhallukseen soveltuvan UPSI:n pintakäsittely täyttää ankariakin ilmasto-olosuhteita kestävän C4-ilmastorasitusluokan vaatimukset.
Tuotteen perustiedot
- LVI-numero 8825045
- Yleisnimi (ERP) ULOSPUHALLUSSUUTIN CLIMECON
- Tarkenne (ERP) UPSI-R 200/250
- Tuotemerkki Climecon
- Tuotesarja UPSI
- EAN-koodi 6415888250456
- Varastoitavuus Hankintatuote
- Pakkauskoot 1/0/0/0
- Minimimyyntierä 1
Tuotteen ominaisuudet
- ETIM-luokka EC010275 - Ulkoilmaritilä







