Seinä-WC asennusteline Geberit Duofix 820 mm, Omega, PE-X
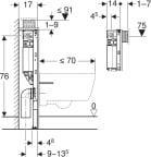
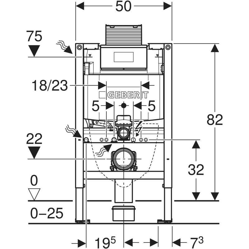
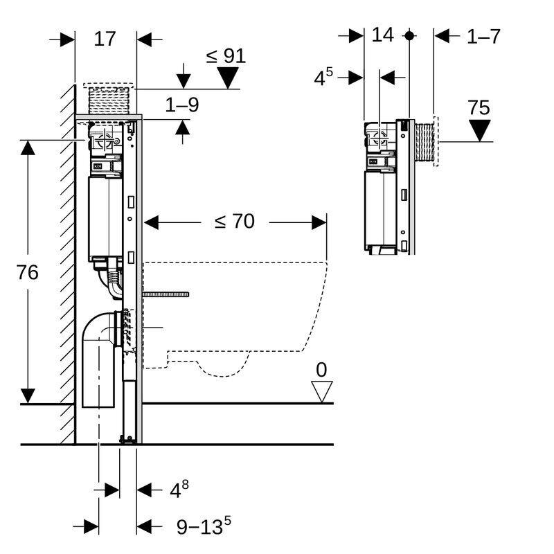
Geberit Duofix Omega 82 cm on matala asennuselementti seinä-WC:lle Omega-säiliöllä hiljaisemmalla täyttöventtiilillä. Soveltuu myös suuremman ulottuman omaaville seinä-WC-istuimille aina 70 cm asti. Toimitukseen sisältyy ylä- ja alaseinäkiinnikkeet, vesi- ja viemärikytkentäsarjat, Q-lukko (90 °) ja kierretangot istuimen kiinnitykseen (kiinnitysväli 18 tai 23 cm). Omega- ja etähuuhtelupainikkeiden asennus onnistuu ilman työkaluja. Huuhtelupainike voidaan asentaa säiliön päälle tai eteen. Huuhtelusäiliö on täysin eristetty kondenssia vastaan. Jalkalevyt voidaan asentaa Geberit Duofix -järjestelmäkiskoon ilman työkaluja, U-profiileihin UW 50 ja UW 75, ja ne voidaan kääntää. Sinkityt, korroosiosuojatut jalkatuet, luistonesto. Yhteensopiva Geberit AquaClean -pesu-WC-istuinten kanssa. Asennuselementissä on valmius sähkökytkennöille.
Ominaisuudet Mallisarja 2025:
- Staattisesti itsekantava kehys, korroosiosuojaus jauhemaalattu
- Runko seinä-WC-istuimille, standardin EN 33 mukaiset asennusmitat ja ulottuma enintään 70 cm
- Kehys porausrei'illä ø 9 mm puurunkorakenteeseen kiinnitystä varten
- Liitoskäyrä voidaan asentaa ilman työkaluja eri syvyysasentoihin, säätöalue 45 mm
- Geberit Omega -piilohuuhtelusäiliö 12 cm, täysin eristetty kondenssia vastaan
- Käyttöön päältä/edestä, sopii kaksoishuuhteluun
- Piilohuuhtelusäiliö valmisteltu PEX-liitintä varten
- Vesikytkentä vasemmalla sivulla
- Huoltoaukon suojakansi voidaan lyhentää, suojaa kosteudelta ja lialta
- Suojaputki Geberit AquaClean -pesu-wc-istuimien vedensyöttöjohtoa ja liitäntäkaapelia varten
- Kiinnitys sähköliitokselle ja Power & Connect Box -rasialle
Tuotteen perustiedot
- LVI-numero 5756969
- Yleisnimi (ERP) SEINÄ-WC ASENNUST. GEBERIT
- Tarkenne (ERP) DUOFIX 820 MM, OMEGA, PE-X
- Tuotemerkki Geberit
- Tuotesarja Duofix
- Pikakoodi PP76
- Toimittajan tuotenumero 111.007.00.3
- EAN-koodi 4064746024191
- Varastoitavuus Varastoitava
- Pakkauskoot 1/12/0/0
- Minimimyyntierä 1
Tuotteen ominaisuudet
- ETIM-luokka EC010145 - Seinäasennuselementti wc:lle huuhtelusäiliöllä
- Toimitussisältö PEX-liitin (kierreliitos G 1/2"), liittimet 15 x 2,5 mm ja 16 x 2,2 mm, muunnoskappaleella, huoltoaukon suojakansi, kaksi ylä- ja alaseinäkiinnikettä, liitossarja WC:tä varten ø 90 mm, liitoskäyrä 90° PE-HD ø 90 mm, muunnosyhde PE-HD
Tekniset ominaisuudet
- Korkein sallittu lämpötila vedelle +25 °C
- Käyttöpaine 0,1–10 bar
- Virtaama 0,09 l/s












