Poistoilmalämpöpumppu Nibe S735 RST-varaajalla, invertteriohjaus
Tuotteen perustiedot
- LVI-numero 5362925
- Yleisnimi (ERP) POISTOILMALÄMPÖPUMPPU NIBE S
- Tarkenne (ERP) S735
- Tuotemerkki Nibe
- Tuotesarja S735
- Pikakoodi GV37
- Toimittajan tuotenumero 066134
- EAN-koodi 6429811025028
- Varastoitavuus Varastoitava
- Pakkauskoot 1/0/0/0
- Minimimyyntierä 1
Tuotteen ominaisuudet
- ETIM-luokka EC012034 - Lämpöpumppu (ilma/vesi) Monoblock
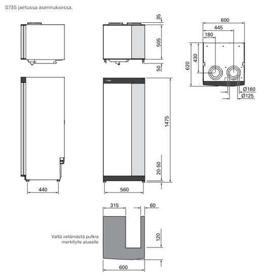
- Tuotekuvaus
NIBE S735 lämmittää talon ja käyttöveden sekä huolehtii kodin ilmanvaihdosta mukautuen automaattisesti kodin lämmitystarpeisiin. Aiempia malleja energiatehokkaampi lämpöpumppu, joka myös tuottaa enemmän lämmintä käyttövettä, ympäristöystävällisellä kylmäaineella. NIBE S735 -poistoilmalämpöpumpussa on korkea vuosilämpökerroin, jonka ansiosta käyttökustannukset ovat matalat. Hiljaisuus, tyylikkyys ja kompakti koko tekevät laitteesta helpon sijoittaa ja asentaa.
NIBE S735 yhdessä NIBE SAM S42 tai S44 -tuloilmamoduulin kanssa on suunniteltu uudistaloihin, joissa on koneellinen tulo- ja poistoilmanvaihto. Tämä täydellinen energiatehokas kokonaisuus luo kotiin tasapainoisen ja hyvän ilmanvaihdon ympäristöystävällisesti. NIBE S735 sopii hyvin myös vanhan poistoilmalämpöpumpun korvaajaksi taloihin, joissa on koneellinen poistoilma ja raitisilmaventtiilit.





