Pesupöytä KWC Tuula 2300x600 mm pellavapinta
LVI-numero 5915343
Toimittajan tuotenumero 103.0193.621
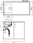
Pesupöytä Tuula ruostumattomasta teräksestä yhdellä tyhjennysaukolla. Pohjaventtiilillä ja integroidulla ylivuotoaukolla, sekä roskankerääjällä ja sihdillä.
Tuotteen perustiedot
- LVI-numero 5915343
- Yleisnimi (ERP) PESUPÖYTÄ KWC TUULA
- Tarkenne (ERP) 713-230 31/2 WWKR 103.0193.621
- Tuotemerkki KWC
- Tuotesarja Tuula
- Toimittajan tuotenumero 103.0193.621
- Varastoitavuus Hankintatuote
- Pakkauskoot 1/0/0/0
- Minimimyyntierä 1
Tuotteen ominaisuudet
- ETIM-luokka EC011315 - Keittiöallas
- Asennustapa Levyasennus
- Materiaali RST
- Altaiden määrä 1
Mitat
- Korkeus (mm) 160
- Leveys (mm) 2300
- Syvyys (mm) 600
Tekniset ominaisuudet
- Materiaalistandardi EN 1.4301



