Pesupöytä KWC Ritva 2200x600 mm vasen kiiltopinta
LVI-numero 5913615
Toimittajan tuotenumero 103.0033.283
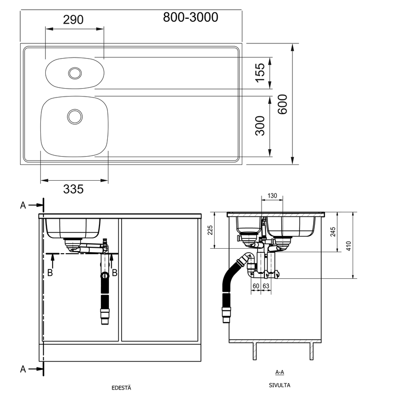
Ritva-pesupöytä kiiltävällä pinnalla. Altaat vasemmalla. Pituus 2200 mm, syvyys 600 mm. Alakaappi vähintään 400 mm. Altaiden mitat 305 x 335 x 140 mm, 290 x 155 x 120 mm. Jos allas pöydän päässä 400 mm kaapissa, S-mitan oltava 40 mm A-profiililla, minimi pituus 450 mm. Huomioi kätisyys. Kokonaismitta 2200x600x140 (L x S x K)
Tuotteen perustiedot
- LVI-numero 5913615
- Yleisnimi (ERP) PESUPÖYTÄ KWC RITVA
- Tarkenne (ERP) 2200X600X30 VAS. 103.0033.283
- Tuotemerkki KWC
- Tuotesarja Ritva
- Toimittajan tuotenumero 103.0033.283
- Varastoitavuus Hankintatuote
- Pakkauskoot 1/0/0/0
- Minimimyyntierä 1
Tuotteen ominaisuudet
- ETIM-luokka EC011315 - Keittiöallas
- Altaan mitat 335 x 400 x 150



