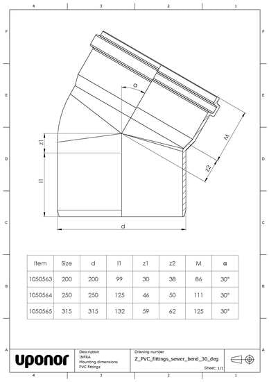
Kulmayhde PVC 30° 315x30 NAL
LVI-numero 2215031
Toimittajan tuotenumero 3072499
Pikakoodi VL52

Tuotteen perustiedot
- LVI-numero 2215031
- Yleisnimi (ERP) KULMAYHDE PVC
- Tarkenne (ERP) 315X30 NAL
- Pikakoodi VL52
- Toimittajan tuotenumero 3072499
- EAN-koodi 4026294051234,6414902503615,7033730202171,9010459143914
- Varastoitavuus Varastoitava
- Pakkauskoot 12/12/12/12
- Minimimyyntierä 1
Tuotteen ominaisuudet
- ETIM-luokka EC003024 - Putkiosa kahdella liitännällä
- Materiaali PVC
Tekniset ominaisuudet
- Supistus Ei
EPD-ympäristötiedot
- EPD-ympäristöseloste
- GWP total, tuotevaihe (A1-A3) 1,39 kg CO2e/kg
- GWP-luvun laskentastandardi EN 15804:2012 + A2:2019
- GWP, kolmannen osapuolen verifiointi Ecochain Ecoinvent, Martijn van Hövell, SGS Search



